Scoll To Next

TSLAW TOWER

TSLAW Tower is a transit-oriented, GBI-compliant commercial tower that’s strategically located between the Kuala Lumpur’s two most important districts – the Bukit Bintang district, and Tun Razak Exchange (TRX), the new world-class international financial district that is under development. Its proximity to these addresses bestows TSLAW Tower with a prestige that is simply unrivalled, and for company’s making it their corporate address, it makes a powerful statement of their business ambitions in the city.

Brochure >    Contact Us >


THE CORPORATE ADDRESS
IN KUALA LUMPUR'S EPICENTRE

Every city has its iconic landmarks and great districts. Districts that come to embody and define the very essence of the city and its people. In Kuala Lumpur, the one district that has become an integral part of its breath-taking technicolour fabric is Bukit Bintang – the country’s premier shopping district, and the vibrant heart and soul of this magnificent city. And in the heart of this great district, a new landmark is emerging - a 48-storey tower of concrete, steel and glass, the first phase of a larger development, which upon completion, will celebrate all that inspires us about Bukit Bintang.

DESIGN PHILOSOPHY

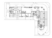
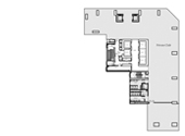
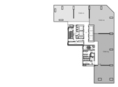
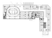
TSLAW Tower is conceptualized to deliver a highly efficient and functional corporate address, perfectly balanced by inspirational aesthetics and communal facilities. From its elegant porte cochere to the double-volume Grand Lobby, to the retail and private club floors, and all the way up to the built-quality of each floor, the architecture and design of TSLAW Tower pushes the envelope in corporate aesthetics in the Klang Valley.

UNIQUE FACTORS


TSLAW Tower embraces features such as multi-level security, elevators with floor-specific access, high-speed broadband connectivity, and sophisticated building management systems. The tower is integrated with a greater multi-component development, with convenient elevated walkways that will enable its occupants to easily connect with a larger community as it is situated both at the gateway into TRX, as well as into Bukit Bintang.






Next to TRX MRT station



Min 2.7m clear ceiling height



Spectacular view of KLCC, TRX & Royal Selangor Golf Club



High speed fibre optic back bone



High speed lifts



Raised floor system for office




Scoll To Top